













BRANNICK
East Los Angeles, CA
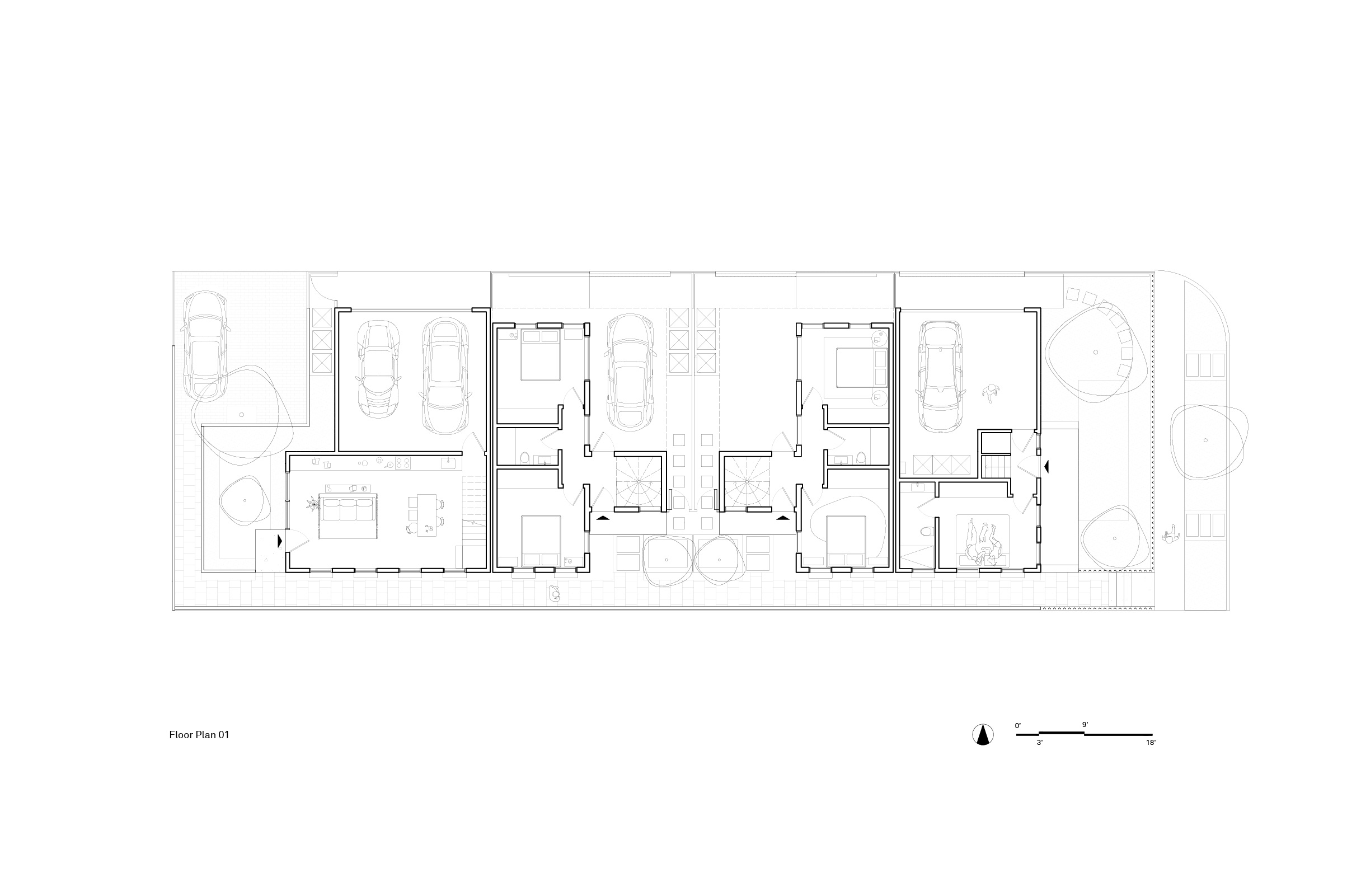
Program: 4 Single family homes
Client: TALLER
Type: SFR on Compact Lots
Budget: Confidential
Size: 6,000 sf
Status: Final Permitting
Our proposal is a novel approach in Los Angeles. We are taking an existing single-family lot in East LA and redeveloping it into four individual residential lots, each with a structurally independent, fee-simple single family home. A new zoning ordinance at the County level allows us to do this. Our project is, in fact, the first project in all of LA County to be approved under this new Compact Lot Ordinance.
We believe in the power of good design and don’t think that it should be reserved only for those with means or developed only in high-priced zip codes. To that end, the Brannick Homes are a deliberate investment into a working class neighborhood with deep roots in Los Angeles. The homes are state-of-the-art projects that prioritize contextual aesthetics, sustainability, great design, and—of course—attainability. They have been thoughtfully wrought to maximize efficiency to keep building costs low, allowing for the new homes to enter the market at below-median prices and still remain profitable to investors. In effect, the project aims to address the “missing middle” in the LA housing market and provide quality home ownership opportunities to a broader swath of households.
The design is at once contextual and contemporary. We use neighborhood cues to shape the project profile and scale to ensure that the homes fit beautifully into the surrounding urban fabric of the neighborhood. Using the gable roof as a starting point, we trim the excess to allow for a sleek timeless profile that will revitalize the streetscape. From exterior to interior, clean lines and modern materials elevate the character of this East LA neighborhood.
The design is also efficient and sustainable. We work around standard material dimensions to reduce waste and labor, and the use SIPs instead of traditional framing makes for a greener home that saves on construction costs, reduces waste, achieves overall quicker assembly, and maintain a tighter building envelope, which reduces the carbon footprint of each unit. The design also captures rainwater and employs solar panels to further minimize the homes' carbon footprint.
Keeping production costs low allows units to be sold at a reasonable price that competes with existing home prices in the area and makes them profitable under the median home price for the County, something all but unheard of for new construction in the area. This is the single-family home rethought; it is a new form of attainable home ownership in Los Angeles.